KAREN BLIXENS VEJ

Holstebro Arkitektkontor har for privat bygherre skitseret og projekteret denne totalrenovering af et 70'er hus, der flere steder trængte til en kærlig hånd. Idag er det er nærmest kun væggene der står tilbage af det originale hus. Der er sket meget både ude og inde, mest iøjnefaldende er de væsentligt større vinduespartier, den mørke alubeklædning og den meget åbne planløsning med loft til kip og synlige gitterspær.
 

LOKALITET  IKAST BYGGEÅR  2023

BIRKELYST

Tegnestuen har for privat bygherre skitseret og projekteret denne funkisvilla med åben gårdhave, forskudte plan og en planløsning tilpasset familiens behov. Planløsningen er samtidig forberedt til eventuelt ændrede behov i fremtiden.
 

LOKALITET  IKAST BYGGEÅR  2020

NØRREGADE

Tegnestuen har for privat bygherre skitseret, projekteret og forestået udbud og tilsyn på en ny funkistilbygning. Gennem en ny glasgang, kommer man ud i et stort soveværelse med åbent badeværelse, stort åbent walk-in og udendørs spaområde.
 

LOKALITET  IKAST BYGGEÅR  2020

REMMEBAKKEN

Tegnestuen har for privat bygherre tegnet et nyt funkishus med mange spændende detaljer, der er opført på en skrånende grund med udsigt over åbnet marklandskab.

LOKALITET  IKAST BYGGEÅR  2018

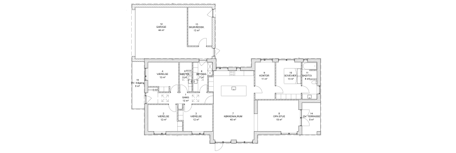
VILLEKULLAVEJ

Tegnestuen har for privat bygherre tegnet et nyt enfamiliehus til opførelse i nyt boligkvarter i Silkeborg. Huset er udarbejdet ud fra bygherres ønsker til opdeling i børne- og voksenafdeling samt stort køkken alrum i åben forbindelse til stue og udearealer.

LOKALITET  SILKEBORG BYGGEÅR  2018

FYNSGADE

Nær centrum af Herning er der efter nedrivning af et ældre enfamiliehus, gjort plads til opførelse af en etageboligbebyggelse som indeholder 6 lejeboliger på ca. 86 m², lejlighederne er udført med store vindues- og terrassepartier fra køkken/alrum til egne terrasser eller altaner, så inde og ude flyder sammen til et stort rum.

LOKALITET  HERNING BYGGEÅR  2017